Baubeschrieb

Gewerbe- und Büroräume zu verkaufen.

Raumkonzept Zwischengebäude/Mitteltrakt

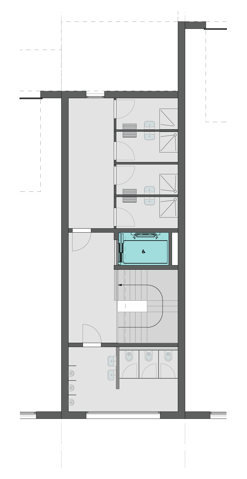
Erdgeschoss

  • Eingangsbereich
  • Personenaufzug und Treppenhaus
  • Abwartsraum / IV WC
  • Briefkasten

1. Obergeschoss

  • Toiletten Herren
  • Duschraum

2. Obergeschoss

  • Toiletten Damen
  • Aufenthaltsraum mit Küche

Attikageschoss

  • Büroraum B13 mit Terrasse

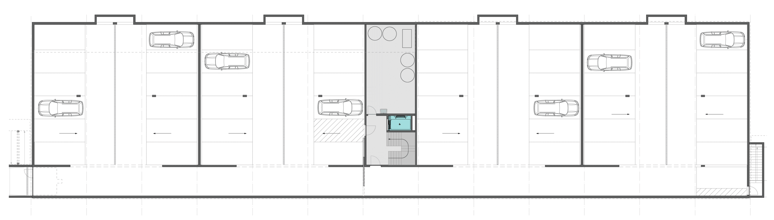
Untergeschoss

48 Parkplätze im Untergeschoss
Durchfahrtshöhe 2.20 m
Parkplätze 1–48 (einer davon IV)

  • Betonboden aus Monobeton, abtaloschiert
  • Wände Beton / Kalkstein ohne besondere Ansprüche
  • Türen / Fenster Metall oder PVC bei Brandschutz in Holz
  • PP können zu den Gewerbe- und Attikaräumen dazugekauft werden

Raumkonzept Gewerberäumlichkeiten Erdgeschoss

Gewerberaum G1: ca. 84 m2
Gewerberaum G2–G5: ca. 87 m2
Gewerberaum G6: ca. 89 m2
Gewerberaum G7–G8: reserviert
Gewerberaum G9: reserviert
Gewerberaum G10–G12: reserviert

Abmessungen

Raum G1: L 15.20 m, B 5.50 m, H 7.40 m
Raum G2–G5: L 15.20 m, B 5.70 m, H 7.40 m
Raum G6: L 15.20 m, B 5.85 m, H 7.40 m
Raum G7–G12: reserviert

Erdgeschoss G1–G12 «Edelrohausbau»

  • Betonboden aus Monobeton, abtaloschiert
  • Holzelementwände aussen Holzschalung / gedämmt/innen OSB-Holzplatte
  • Tragkonstruktion sichtbar mit Holzträger
  • Decke Holzelement, OSB-Holzplatte
  • Schaufenster PVC-Fenster 3-fach mit Beschattung und Eingangstüre
  • 4.50 m hohe Industriehallentore mit Lichtbändern und Eingangstüre
  • Stromzufuhr auf Tableau
  • Netzwerkanschluss / Telefonanschluss auf Tableau vorbereitet
  • Bodenheizung für Wärmelieferung
  • Schliessanlage elektronisch «E-Access»
  • Installation einer Krananlage in Rücksprache möglich
  • 1 × Kaltwasseranschluss

Raumkonzept Gewerberäumlichkeiten mit Attikageschoss

Raum B1: ca. 65 m2
Raum B2–B5: ca. 68 m2
Raum B6: ca. 68 m2
Raum B7: reserviert
Raum B8–B11: ca. 68 m2
Raum B12: reserviert
Raum B13: ca. 40 m2 mit Terrasse

Abmessungen

Raum B1: L 11.90 m, B 5.50 m, H 2.50 m
Raum B2–B5: L 11.90 m, B 5.70 m, H 2.50 m
Raum B6: L 11.90 m, B 5.85 m, H 2.50 m
Raum B7: reserviert
Raum B8–B11: L 11.90 m, B 5.70 m, H 2.50 m
Raum B12: reserviert
Raum B13: L 6.30 m, B 5.30 m, H 2.50 m

Attikageschoss B1–B13 «Edelrohausbau»

  • Unterlagsboden Anhydrit
  • Holzelementwände aussen Holzschalung / gedämmt
    / innen OSB-Holzplatte
  • Tragkonstruktion sichtbar mit BSH-Trägern
  • Decke Holzelemente, Dreischichtplatten sichtbar
  • Kiesdach evtl. PV-Anlage
  • Fenster mit Beschattung und Eingangstüre
  • Stromzufuhr auf Tableau
  • Netzwerkanschluss / Telefonanschluss auf Tableau vorbereitet
  • Bodenheizung für Wärmelieferung oder Kühlung
  • Schliessanlage elektronisch «E-Access»
  • Zugangsbereich mit Gehwegplatten
  • 1 × Kaltwasseranschluss
  • Gewerberäumlichkeiten B7–B12 Terrasse Ostseite optional möglich

Visualisierung und Schnitt

ansicht_2025

Schnitt G1 - G6

Schnitt G7 - G12

Südfassade

Nordfassade

Westfassade

Ostfassade